GEBÄUDE
Gilching
Sonnenstraße 10-16

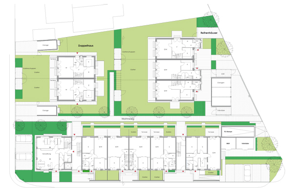
Auf der Grundlage eines städtebaulichen Rahmenplans hat der Gemeinderat im Jahr 2002 beschlossen, das gesamte Bauquartier entlang der Sonnenstraße zu überplanen.

Oberstes Planungsziel ist eine ökologisch nachhaltige Erneuerung der Gebäude an der Sonnenstraße unter Einbeziehung einer zukunftsorientierten Energieversorgung und einer ansprechenden Wohnumfeldgestaltung.

Fünf Familienhäuser stehen als Bindeglieder räumlich im Zusammenhang mit den bestehenden Einfamilienhäusern der Dorniersiedlung und dem geplanten Geschossbau an der Sonnenstraße.



Luftbild

GautingEGAnsicht NOGartenwegFamilienhäuser