GEBÄUDE
Modernisierung Gilching
Sonnenstr. 7-9a

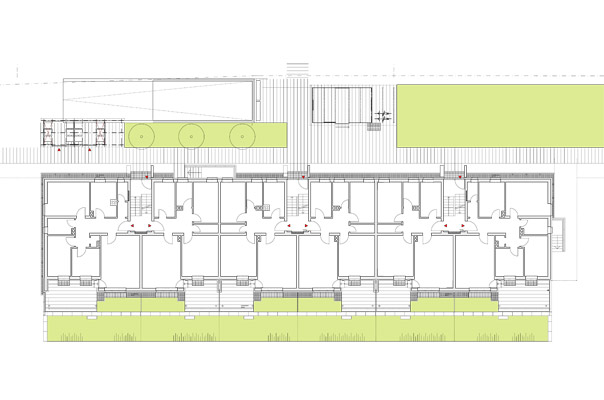
Neben einer kompletten Sanierung der Gebäudehülle und Haustechnik unter energetischen Gesichtspunkten stellte die Wohnumfeldgestaltung einen weiteren Handlungsschwerpunkt dar. Alle Erdgeschosswohungen bekamen einen direkten Gartenzugang, die Balkone wurden vergrößert und die Eingangsbereiche mit Briefkästen, Nebengebäuden und Sitzbank neu gestaltet.

Mit Hilfe einer 40 m² großen Solaranlage und einer neuen Brennwertheizung konnte der Energieverbrauch des hochgedämmten Gebäudes auf den Neubaustandard der ENEV 2007 gebracht werden.

 



Lageplan

GrundrissvorhernachherGartenInnenraum